Search the Archive
DATE
TOPIC
TYPE
COLLECTIONS
ENTITIES
LOCATIONS
Notes on Approximate Surveys of the Medical Centre at the Patient Friend's Society, Tulkarm, 1991
The Sameh Abboushi Collection
Bridges Details Plan for the Medical Centre of the Patient Friend's Society, Tulkarm, August 1991
The Sameh Abboushi Collection August 1991
Bridges Details Plan for the Medical Centre of the Patient Friend's Society, Tulkarm, August 1991
The Sameh Abboushi Collection August 1991
General Details Plan for the Medical Centre of the Patient Friend's Society, Tulkarm, August 1991
The Sameh Abboushi Collection August 1991
The Sameh Abboushi Collection August 1991
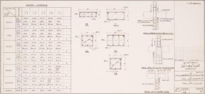
Columns Tables Plan for the Medical Centre of the Patient Friend's Society, Tulkarm, August 1991
The Sameh Abboushi Collection August 1991
The Sameh Abboushi Collection August 1991
The Sameh Abboushi Collection August 1991
The Sameh Abboushi Collection August 1991
The Sameh Abboushi Collection August 1991
The Sameh Abboushi Collection August 1991
Bases Formation Plan for the Medical Centre of the Patient Friend's Society, Tulkarm, August 1991
The Sameh Abboushi Collection August 1991
The Sameh Abboushi Collection August 1991
The Sameh Abboushi Collection August 1991
Diggings Plan for the Medical Centre of the Patient Friend's Society, Tulkarm, July 1991
The Sameh Abboushi Collection July 1991
The East Section Plan for the Medical Centre of the Patient Friend's Society, Tulkarm, July 1991
The Sameh Abboushi Collection July 1991
The West Section Plan for the Medical Centre of the Patient Friend's Society, Tulkarm, July 1991
The Sameh Abboushi Collection July 1991
The Sameh Abboushi Collection July 1991
Rain Slant Plan for the Medical Centre of the Patient Friend's Society, Tulkarm, August 1991
The Sameh Abboushi Collection July 1991
A\A Section Plan for the Medical Centre of the Patient Friend's Society, Tulkarm, July 1991
The Sameh Abboushi Collection July 1991
BB Section Plan for the Medical Centre of the Patient Friend's Society, Tulkarm, July 1991
The Sameh Abboushi Collection July 1991
The Sameh Abboushi Collection August 1991
The Sameh Abboushi Collection August 1991
Ground-Floor Window Details Plan for the Patient Friend's Society, Tulkarm, July 1991
The Sameh Abboushi Collection July 1991
The Sameh Abboushi Collection July 1991
The Sameh Abboushi Collection July 1991
C-C Section Plan for the Medical Centre of the Patient Friend's Society, Tulkarm, July 1991
The Sameh Abboushi Collection July 1991
D-D Section Plan for the Medical Centre of the Patient Friend's Society, Tulkarm, July 1991
The Sameh Abboushi Collection July 1991
The Sameh Abboushi Collection July 1991
The Sameh Abboushi Collection July 1991
The Sameh Abboushi Collection July 1991
The Sameh Abboushi Collection July 1991
General Details Plan for the Medical Centre of the Patient Friend's Society, Tulkarm, August 1991
The Sameh Abboushi Collection August 1991
The Sameh Abboushi Collection 1991
The Engineering Drawing of the Medical Centre of the Patient Friend's Society, Tulkarm, 1991
The Sameh Abboushi Collection July – August 1991
The Ground-Floor Plan of al-Khaldi Family Home- al-Turba Djaliqiyya, Jerusalem, the 1990s
The Sameh Abboushi Collection 1990s